Фильтр ФИПа 1 ступени ионитный параллельноточный используется на водоподготовительных установках электростанций, промышленных и отопительных котельных и предназначен для обработки воды с целью удаления из нее катионов накипеобразователей ( Ca2+ и Mg2+ ) в процессе натрий-водород-катионирования или аммоний-натрий-катионирования, а также сульфатных, хлоридных и нитратных анионов в процессе обессоливания природных вод
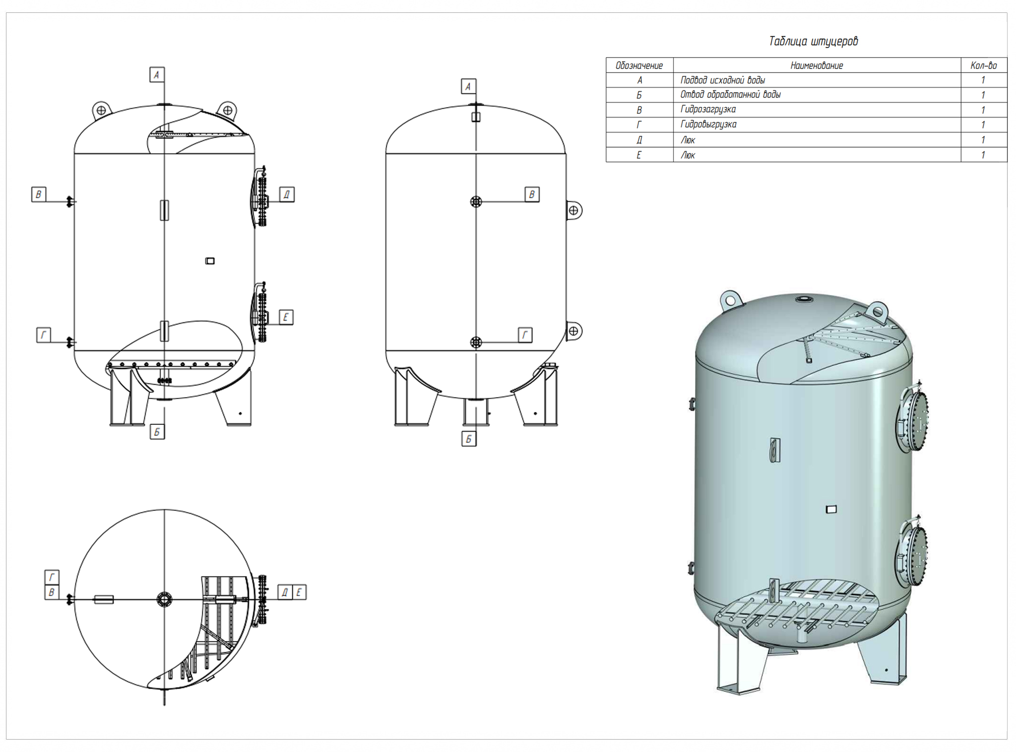
Ионитный фильтр ФИПа-I ступени представляет собой вертикальный однокамерный циллиндрический аппарат. Каждый фильтр ФИПа состоит из корпуса, нижнего и верхнего распределительных устройств, трубопроводов, запорной арматуры и пробоотборного устройства. Корпус фильтра ФИПа-I снабжен двумя люками, используемыми при эксплуатации ионитного фильтра. Через верхний люк загружают катионит и производят его осмотр в процессе эксплуатации, через нижний люк производят осмотр корпуса фильтра и нижнего распределительного устройства.
Принцип действия фильтра ФИПа первой ступени: вода под давлением 0,6 МПа поступает на обработку в фильтр ФИПа-I и проходит через слой зернистого ионообменного материала. При этом катионит поглощает из воды ионы накипеобразователи Ca2+ и Mg2+ и заменяет их эквивалентным количеством катионов Na+, H+ или NH4+. Цикл работы фильтра ФИПа-I состоит из четырех этапов: умягчение, взрыхление, регенерация, отмывка.
Стандартный комплект поставки фильтров ФИПа-I cостоит из корпус фильтра, верхнего и нижнего распределительных устройств, трубопроводов обвязки фильтров с арматурой и КИП (по согласованию с заказчиком).
Распределительные устройства могут быть нержавеющего или полимерного исполнения.
Фильтр ФИПа 2 ступени ионитный параллельноточный предназначен для работы в различных схемах установок глубокого и полного химического обессоливания для второй и третьей ступени натрий-катионирования, водород-катионирования и анионирования и используются на водоподготовительных установках электростанций, промышленных и отопительных котельных. При использовании фильтров ФИПа-II в схемах глубокого обессоливания из воды удаляются практически все катионы и анионы, за исключением кремниевой кислоты, а при использовании в схемах полного химического обессоливания удаляется и кремниевая кислота
Фильтр ФИПа-II используется для дополнительной, более глубокой очистки воды. Они устанавливаются последовательно после фильтров первой ступени. Производительность фильтра ФИПа-II вдвое больше, чем у аналогичного по размерам фильтра первой ступени. Это обеспечивается нижним сборно-распределительным устройством с большой площадью рабочей поверхности. Таким образом после двух фильтров первой ступени для дополнительного умягчения воды можно устанавливать один фильтр ФИПа второй ступени.
Принцип действия фильтра ФИПа 2 ступени: вода под давлением 0,6 МПа поступает на обработку в фильтр ФИПа и проходит через слой зернистого ионообменного материала высотой 1500 мм. При этом катионит поглощает из воды ионы накипеобразователи Ca2+ и Mg2+ и заменяет их эквивалентным количеством катионов Na+, H+ или NH4+. Цикл работы фильтра ФИПа-II включает следующие этапы: умягчение, взрыхление, регенерация, отмывка.
Фильтры ФОВ предназначены для удаления из воды взвешенных примесей разной степени дисперсности. Осветлительный фильтр ФОВ, или как его еще называют механический или скорый фильтр, применяется в схемах водоподготовительных установок различного назначения.
Фильтр ФОВ представляет собой вертикальный однокамерный циллиндрический аппарат. Каждый фильтр ФОВ состоит из корпуса, нижнего и верхнего распределительных устройств, трубопроводов, запорной арматуры и пробоотборного устройства. Корпус фильтра ФОВ снабжен двумя люками, используемыми при эксплуатации фильтра.
Принцип действия осветлительного фильтра ФОВ: вода под давлением 0,6 МПа поступает на обработку в фильтр ФОВ и проходит через слой зернистого фильтрующего материала. Механические примеси воды задерживаются фильтрующей загрузкой, а осветленная вода собирается нижней сборно-распределительной системой и отводится из осветлительного фильтра. Цикл работы фильтра ФОВ: осветление, взрыхление, промывка.
Фильтр ФИПр – это фильтр ионитный противоточный, применяющийся для смягчения воды в системах водоподготовки. Фильтры ФИПр могут использоваться как самостоятельное оборудование для вывода солей из воды, но наиболее распространена их эксплуатация в составе водоподготовительных установок ВПУ.
Противоточные фильтры ФИПр высоко востребованы в котельных и тепловых пунктах, где они приводят качество подпиточной воды к соответствию нормативным требованиям, а также на иных объектах промышленного и коммунального назначения, связанных с очисткой воды.
Умягчение воды посредством фильтра ФИПр осуществляется за счет Na-катионирования и H-катионирования (удаления из потока рабочей среды катионов кальция Ca+ и магния Mg+, придающих ей жесткость). Поток подпиточной воды пропускается через слой ионообменных материалов (анионитов и катионитов), где катионы натрия заменяют катионы кальция и магния, остающиеся в зернах фильтрующего материала.
По истощению емкости катионита необходимо производить регенерацию ионитного материала для восстановления обменной емкости. Для этого через слой фильтрующей загрузки пропускается регенерационный раствор, представляющий собой 10-15% раствор поваренной соли. В отличие от системы ионирования фильтров ФИПа (параллельноточная система), в противоточной системе ионирования фильтров ФИПр регенерация фильтрующей загрузки осуществляется в противоположном направлении от движения обрабатываемого потока. То есть, если при фильтрации поток обрабатываемой воды двигался сверху-вниз, то регенерационный раствор подается снизу-вверх. И наоборот: если при фильтрации поток обрабатываемой воды двигался снизу-вверх, то регенерационный раствор подается сверху-вниз.
Цикл работы противоточного фильтра состоит из нескольких этапов:
- фильтрация (вывод солей или смягчение);
- взрыхление (примерно 1 раз в 10 циклов);
- регенерация;
- отмывка;
- сброс фильтрующего материала.
Условное обозначение фильтров:
ФОВ-1,5-0,6, где:
ФОВ – фильтр осветлительный (ФИПа – фильтр параллельноточный, ФИПр – фильтр противоточный)
1,5 - объем фильтра, м3
0,6 – давление, МПа
